Associated Designs | Hayward House Plan Features Wraparound Porch and Vaulted Ceilings
Industry: Home & Garden
The Hayward house plan reflects many of the design features homeowners continue to prioritize as they plan new construction. With its welcoming wraparound porch, vaulted living spaces, and generous windows that bring in natural light, the home blends traditional country character with practical layouts suited for modern living. Flexible spaces for a home office, hobbies, or exercise add to the plan’s versatility, while an expansive kitchen and comfortable gathering areas support both everyday routines and casual entertaining. Designed for larger homesites, the Hayward offers a thoughtful balance of classic architecture, livable space, and the indoor-outdoor connections many buyers are seeking today.
Eugene, OR (PRUnderground) March 17th, 2026
The Hayward is a spacious country house plan that blends timeless architecture with the flexible living spaces today’s homeowners are searching for. Designed for construction on a generous homesite, this beautifully detailed home features expansive windows, dramatic vaulted ceilings, and inviting indoor outdoor living areas that support modern lifestyles.
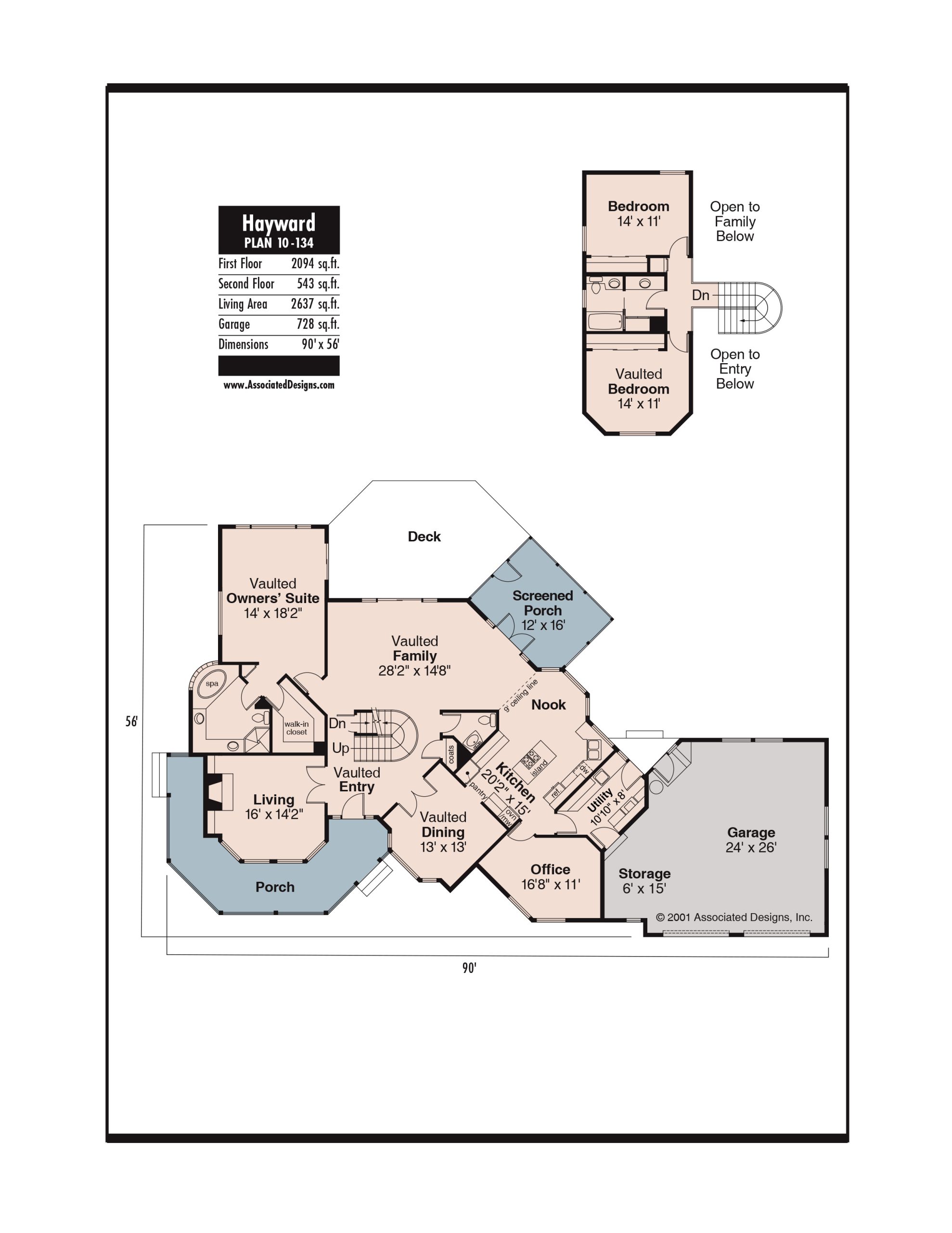
A wide wraparound porch frames the front of the home and continues around the bayed living room, creating the perfect place to relax and enjoy views of the surrounding landscape. Double doors open into the welcoming living room, where built in bookshelves flank a cozy fireplace and create a warm gathering space filled with natural light.
The vaulted dining room is designed to impress, highlighted by a graceful window bay and an overhead dormer that fills the space with daylight. Nearby, another dormer brightens both the entry foyer and the elegant open staircase, adding architectural character and visual interest.
At the heart of the home is an expansive kitchen designed for both everyday living and entertaining. This chef friendly space features a large center island with cooktop, abundant cabinetry, a walk in pantry, and a sunny bayed breakfast nook. A charming plant window in front of the sink adds character while bringing in additional natural light. Built in appliances including the oven, microwave, and dishwasher add convenience, while a spacious utility room with laundry and extended counter space sits just around the corner.
The oversized family room provides a comfortable place for relaxing and gathering. Sliding French doors open to a deck that is ideal for outdoor dining and entertaining. Another set of French doors leads to a screened porch that can easily be converted to a glass enclosed sunroom for additional year round living space. Adjacent to the kitchen and dining area, a flexible bonus room can function as a home office, hobby room, craft studio, fitness space, or guest retreat.
The main level primary suite offers a private retreat with a walk in closet and a luxurious bath that includes dual vanities, a custom shower, and a large soaking tub softly illuminated by glass block windows.
Upstairs, two secondary bedrooms provide comfortable accommodations. The front bedroom features a vaulted ceiling and a dramatic half round window that enhances the home’s architectural charm. A convenient compartmented bathroom layout allows multiple users to share the space with ease.
Completing the design is a full basement and a compact upper level, with basement stairs conveniently tucked beneath the main staircase. This level offers additional storage, recreation space, or opportunities for future expansion.
With its wraparound porch, light filled interiors, open living areas, and versatile rooms, the Hayward house plan offers the space, comfort, and flexibility many homeowners seek in a modern country home.
The Hayward 10-134 is created by Associated Designs, Inc.’s talented team of residential home designers. To learn more about this design visit www.AssociatedDesigns.com.
About Associated Designs
Founded in 1990, Associated Designs offers pre-designed plans and custom design services. Created by a talented team of designers with more than 45 years of design experience, Associated Designs offers a variety of single family homes, garage and accessory structures, and multi-family designs.



