Associated Designs | Warm Holiday Moments Start in the Danville
Industry: Home & Garden
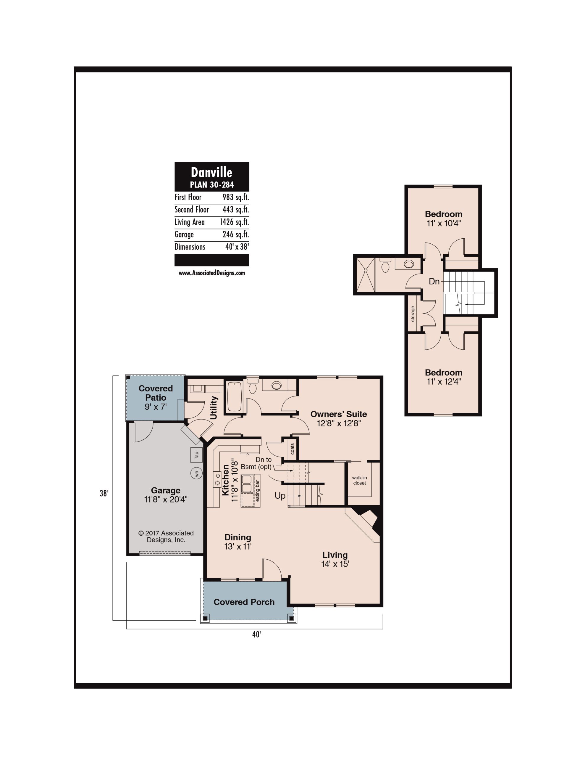
The Danville is a charming 1.5-story cottage-style house plan that brings together classic 1920s–1930s architectural character and the comforts of modern living, making it an ideal backdrop for holiday gatherings. With its inviting porch, warm interior layout, and family-friendly design, this home blends nostalgic curb appeal with today’s most sought-after features. As seasonal home trends spotlight cozy, functional spaces, the Danville stands out as a timeless option for homeowners seeking style, efficiency, and year-round comfort.
Eugene, OR (PRUnderground) December 23rd, 2025
The Danville, a charming 1.5-story house plan, blends the cozy character of 1920s–1930s cottage architecture with the comfort of modern living, perfect for creating holiday memories. Its exterior showcases classic details, from small-pane upper sashes on the double-hung windows to a welcoming porch supported by sturdy wooden columns atop masonry bases, offering a timeless backdrop for seasonal décor.
Inside this thoughtfully designed cottage home plan, a contemporary layout maximizes both space and functionality. The open-concept living room, dining room, and kitchen create an airy, inviting hub ideal for festive gatherings. A fireplace tucked into the back corner of the living room becomes the heart of the home in winter months, adding warmth, color, and a welcoming glow.
The kitchen delivers both style and practicality, featuring wrap-around counters and a central work island. A flush eating bar along the front of the island is perfect for holiday baking sessions, homework check-ins, or casual conversation. The efficient layout forms a convenient, step-saving triangle between the sink, stove, and refrigerator. A deep walk-in pantry provides ample storage for seasonal ingredients, while nearby doors lead to the garage and covered patio—an outdoor space that can be screened for cozy year-round dining.
The main-floor owners’ suite offers a peaceful retreat, complete with a spacious walk-in closet and direct access to the main bathroom, ideal for unwinding after busy holiday festivities.
Upstairs, the Danville home design includes two additional bedrooms. The larger front bedroom and adjoining room share a bathroom with an oversized shower, while charmingly sloped ceilings on both sides enhance the cozy cottage ambiance. A wide hallway linen closet adds valuable extra storage for towels, bedding, and seasonal décor.
Blending classic architectural character with modern comfort, the Danville cottage home plan delivers a timeless, family-friendly layout perfect for everyday living and made even more magical during the holidays. It’s an ideal choice for homeowners seeking a functional, stylish, and welcoming home that truly feels like the heart of the season.
The Danville 30-284 is created by Associated Designs, Inc.’s talented team of residential home designers. To learn more about this design visit www.AssociatedDesigns.com.
About Associated Designs
Founded in 1990, Associated Designs offers pre-designed plans and custom design services. Created by a talented team of designers with more than 45 years of design experience, Associated Designs offers a variety of single family homes, garage and accessory structures, and multi-family designs.



