Associated Designs | Open Concept Ranch Home Plan with Sunroom, Den, and Vaulted Living Spaces
Industry: Home & Garden
Interest in single-level ranch house plans continues to rise as homeowners prioritize comfort, efficiency, and long-term livability in their home designs. The Ryland answers that demand with a well-balanced one-story layout that combines classic architectural detailing with open, light-filled living spaces. Designed for flexibility, this modern ranch-style home plan offers the kind of functional flow, accessibility potential, and everyday convenience that today’s buyers are actively searching for, making it a strong option for families, downsizers, and anyone seeking a thoughtfully designed open-concept ranch home.
Eugene, OR (PRUnderground) March 24th, 2026
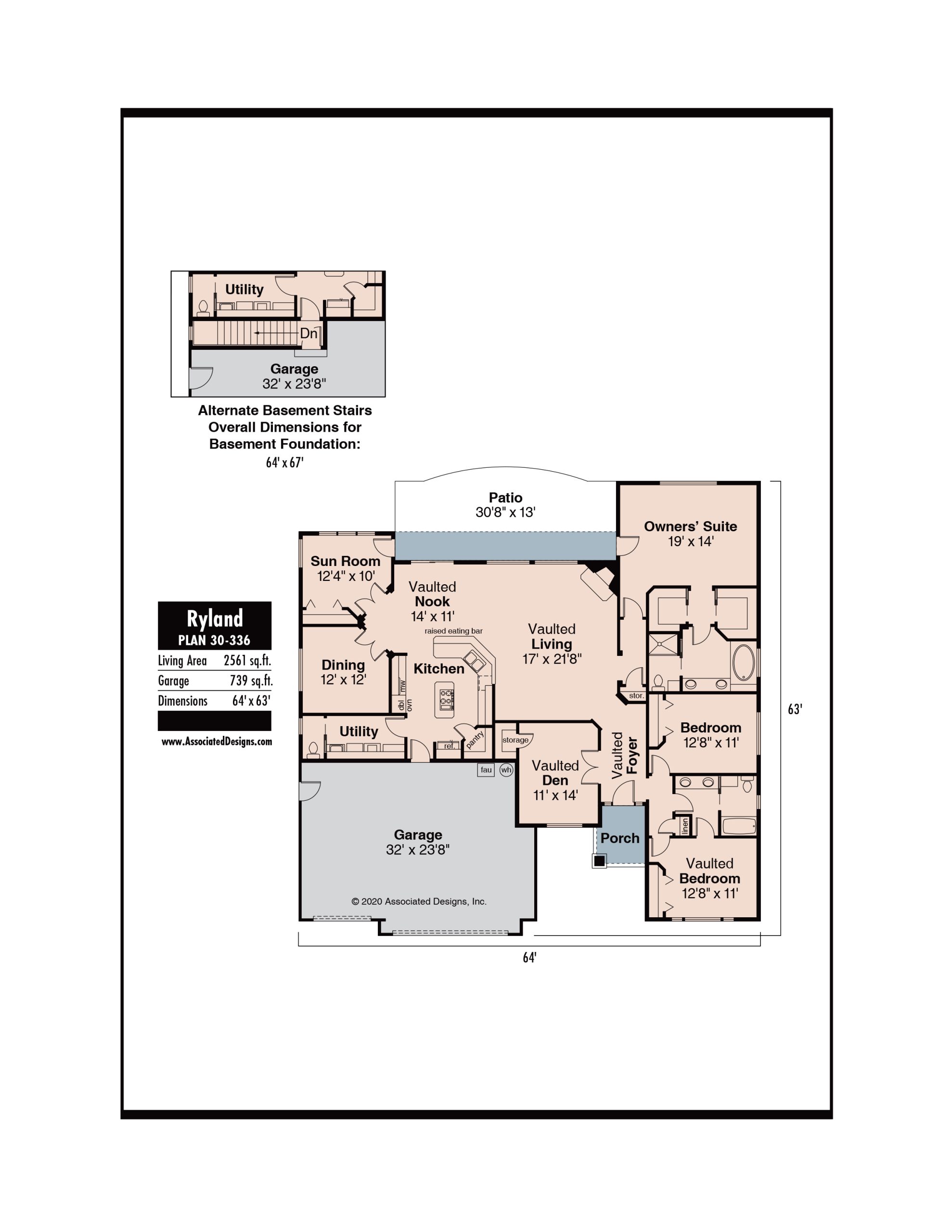
The Ryland is a thoughtfully designed single-level ranch house plan that blends timeless curb appeal with comfortable, everyday living. A stately brick veneer exterior creates a sense of durability, while decorative gable brackets and detailed eave accents introduce architectural character. Raised brick detailing highlights the arched entry and window openings, giving the home a polished and inviting appearance. With its open layout and minimal level changes, this one-story home also lends itself well to aging in place or wheelchair accessibility.
Inside, vaulted ceilings expand the sense of space throughout the foyer, den, living room, and breakfast nook. Natural light filters into the entry through a sidelight and transom window, creating a bright and welcoming introduction. Just off the foyer, double doors open to a versatile den that works beautifully as a home office, guest room, or optional fourth bedroom.
At the center of this open concept ranch floor plan, the living room offers generous square footage and an abundance of windows that draw in natural light. A corner gas fireplace adds warmth and serves as a focal point, easily enjoyed from both the living room and kitchen. Nearby, double doors lead to a bright sunroom, while a separate enclosed dining room provides a more formal space for entertaining.
The kitchen is designed for both efficiency and style, making it a standout for anyone searching for a modern ranch-style kitchen layout. A raised eating bar defines the J-shaped counter, complemented by a central work island. Ample cabinetry and counter space wrap around three sides, and a corner pantry adds practical storage for busy households.
Convenience continues with a nearby utility room that includes laundry appliances and a half bath, along with direct access to the spacious three-car garage, an ideal feature for homeowners who need extra storage or workspace.
The private bedroom wing is located along the right side of the home. The owner’s suite offers comfort and functionality with dual walk-in closets and a well-appointed bathroom that includes a soaking tub, double vanity, separate shower, and enclosed toilet area. A built-in ironing board adds an extra layer of everyday convenience. Additional bedrooms are nearby, creating a layout that works well for families or those seeking a single-story home plan with thoughtful separation of spaces.
The Ryland 30-336 is created by Associated Designs, Inc.’s talented team of residential home designers. To learn more about this design visit www.AssociatedDesigns.com.
About Associated Designs
Founded in 1990, Associated Designs offers pre-designed plans and custom design services. Created by a talented team of designers with more than 45 years of design experience, Associated Designs offers a variety of single family homes, garage and accessory structures, and multi-family designs.



