Associated Designs | Pine Hill Three-Bedroom Farmhouse-Inspired Floor Plan

Industry: Home & Garden

Buyers searching for cottage-style house plans and flexible family-friendly layouts are turning to designs like the Pine Hill for its blend of timeless country charm and modern open-concept living. Featuring a wraparound porch, interconnected main-level living spaces, and a private three-bedroom upper floor, this home plan reflects today’s demand for functional design, indoor-outdoor flow, and adaptable spaces suited for both suburban neighborhoods and scenic retreat settings.

Eugene, OR (PRUnderground) March 3rd, 2026

The Pine Hill is a country-inspired home plan designed for both weekend retreats and year-round suburban living. With wooden shutters and a welcoming wrap-around front porch, this cottage-style design delivers timeless curb appeal for homeowners seeking a farmhouse inspired design.

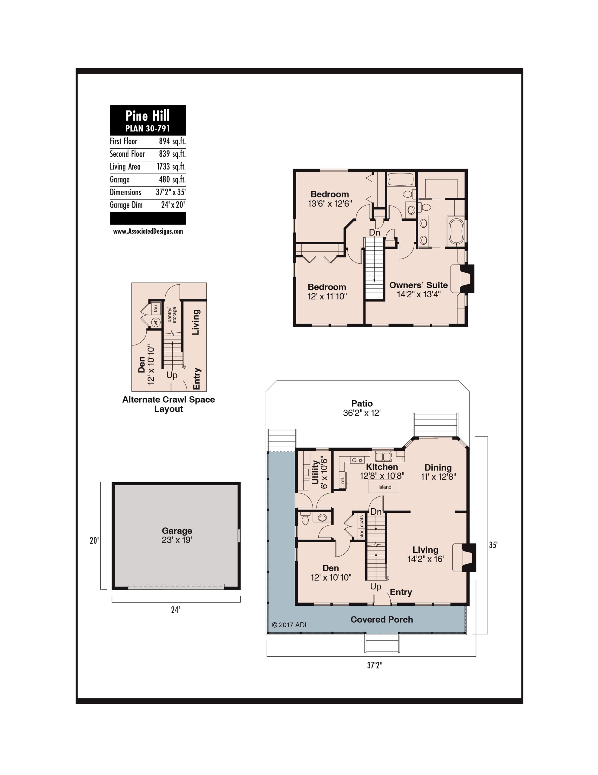
Inside, natural light fills the entry through elegant sidelights, while a centrally located staircase leads to three upstairs bedrooms and two full bathrooms. The smart layout separates private spaces from the main living areas, making it ideal for families and everyday living.

The first floor features four interconnected living spaces that flow seamlessly around the staircase, creating an open and highly functional floor plan. The entry opens to a spacious living room on one side and a flexible den or home office on the other. A fireplace anchors the living room, adding warmth and architectural character.

An arched opening leads to the dining area, enhanced by a bright bay window and sliding glass doors that open to a generous deck just steps below the main level—perfect for indoor-outdoor living. The dining space flows directly into the open kitchen, where a large center island increases prep space, storage, and casual seating. From the sink, homeowners enjoy clear views of the dining area and backyard.

Nearby, a well-sized utility room with upper cabinets and a convenient powder bath add everyday practicality. An exterior door off the hallway leads to a covered porch and patio—ideal for managing outdoor gear or pets.

Upstairs, the owner’s suite offers a private retreat with a second fireplace, dual vanities, and a deep soaking tub. Blending classic charm with modern functionality, the Pine Hill is a versatile, family-friendly home design built for today’s lifestyles.

The Pine Hill 30-791 is created by Associated Designs, Inc.’s talented team of residential home designers. To learn more about this design visit www.AssociatedDesigns.com.

About Associated Designs

Founded in 1990, Associated Designs offers pre-designed plans and custom design services. Created by a talented team of designers with more than 45 years of design experience, Associated Designs offers a variety of single family homes, garage and accessory structures, and multi-family designs.

Print Friendly, PDF & Email

Become a Fan

Press Contact

Name
Jessica Craig
Phone
541-461-2082
Email
Contact Us
Website

Image Gallery